Canada Wood China
混合木結構的辦公建筑
巧妙的可能性
中加現代木結構建筑在中國已經進行了很多嘗試,雪浪小鎮數據創新中心項目的獨特性在于,它雖然大量采用了木材,但卻是一座現代化的辦公樓。從外觀和設計風格上來看,我們很難猜到它是一座膠合木框架結構的辦公建筑,它的建成,為多層木結構在大型辦公建筑領域的應用提供了多方面的參考和經驗。


| 項目鳥瞰實景(加拿大木業供圖,攝影 ?金偉琦)
01
概 況
雪浪小鎮數據創新中心的基地位于無錫太湖新城核心區,項目東側緊鄰尚賢河濕地公園,西側聚集各類金融產業辦公建筑,園區科技金融氛圍濃厚。建筑師希望將建筑理性兼顧尊重周邊現有環境的姿態融入到城市街區之中,在這個前提下去創造一個既體現江南的傳統文化,又展現出現代產業園區特點的,充滿活力的太湖新城的“城市客廳”。

| 項目鳥瞰實景(加拿大木業供圖,攝影 ?金偉琦)
這是加拿大木業又一中加現代木結構合作項目。加拿大木業在本項目的設計和施工過程中提供了木結構相關的技術支持,包括圖紙審閱和設計建議、施工前期的技術培訓,以及施工過程中的質量監督等。
基地內共五棟辦公建筑,從南向北一字排開,總建筑面積約8.7萬平方米。在方案階段時,基地內的五棟建筑均被設計為混凝土結構,但在考慮了節能、低碳、造價和工期等諸多因素后,開發商決定將基地最北面的A1號樓改為膠合木框架結構。



| 立面實景(加拿大木業供圖,攝影 ?金偉琦)

| 立面設計效果圖 ?上海興筑建筑設計

02
獨特性
A1號辦公樓為五層砼木組合結構建筑,總建筑面積約為一萬平方米,其中木結構部分約為5780平米。建筑的平面呈回形布置,四周的建筑將中間的室外空間圍合,形成一個庭院。

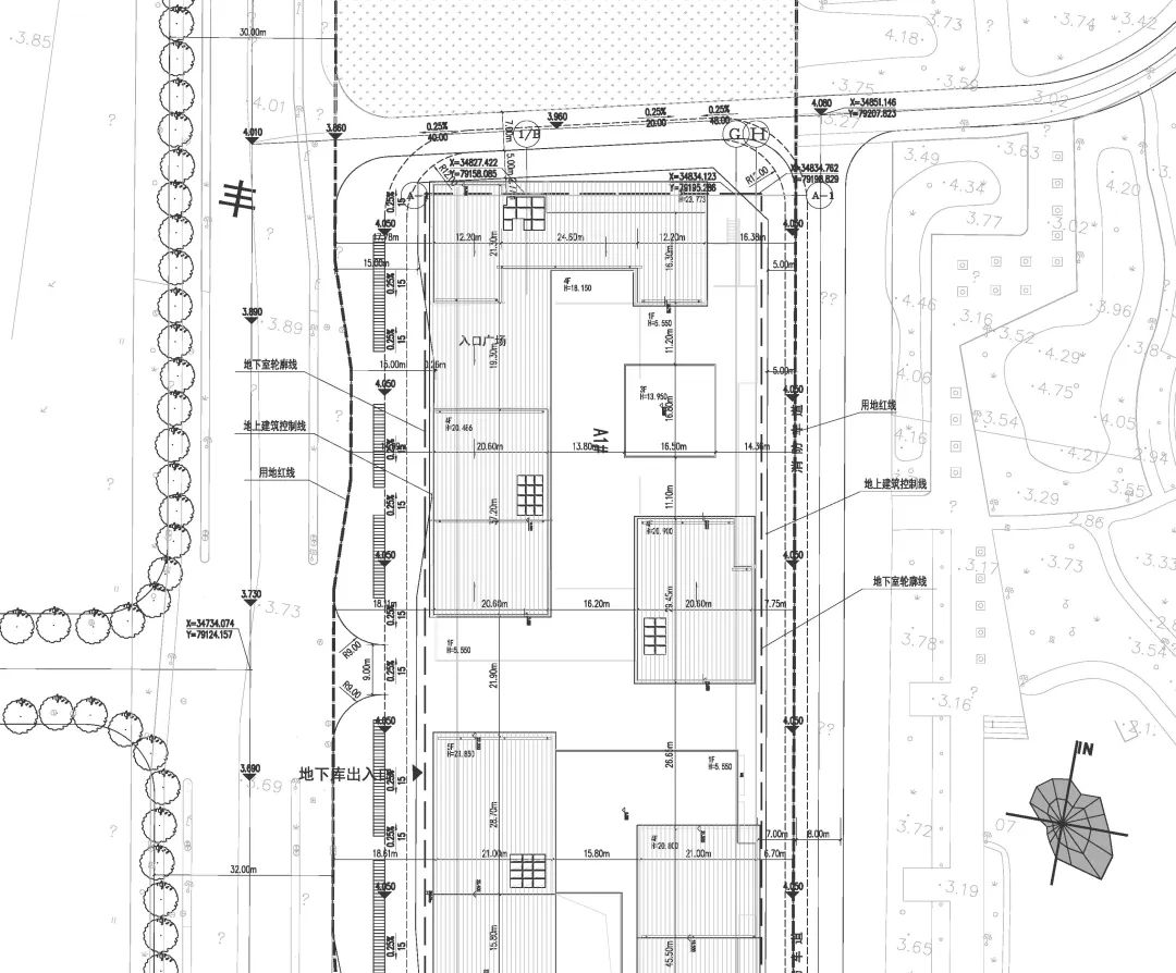
| A1號辦公樓總平面圖 ?上海興筑建筑設計
下部1至2層混凝土結構是回形建筑的基座,它僅在中心庭院的主入口部分斷開。而在這斷開處的上部,兩棟外形分離的3層木結構建筑(A1-1和A1-3)通過一個巨大的坡屋面相連。這樣的設計既保證了整棟建筑的整體性,又可以滿足木結構建筑防火分區的需要。

| 項目鳥瞰實景(加拿大木業供圖,攝影 ?金偉琦)
連接屋面采用了膠合木和鋼拉桿形成的張弦梁結構,跨度約為20米??紤]到兩側高低不同的木結構建筑側向變形的獨立性,連接屋面的一側采用了滑動支座的設計。

| 木結構連廊與木構小品(加拿大木業供圖,攝影 ?金偉琦)

| 木結構連廊細節圖(加拿大木業供圖,攝影 ?金偉琦)
在連接屋面的下方,有兩座鋼木混合結構的傘狀構筑物,它們為屋面下高大的空間增加了更多的層次和趣味,同時也為整體建筑冷色調的外立面增添了些許木色的溫暖質感。

| 木構小品(加拿大木業供圖,攝影 ?金偉琦)
第三棟較小的2層木結構建筑(A1-2),以一個立方體玻璃盒子的形象出現在混凝土結構基座形成的室外平臺上。玻璃盒子由一個旋轉樓梯將底層混凝土結構和上部兩層木結構聯通。樓梯的底部直接連接一層室外,頂部終止于一個圓形的天窗。

| 建筑內庭院實景(加拿大木業供圖,攝影 ?金偉琦)

| 旋轉樓梯夜景(加拿大木業供圖,攝影 ?金偉琦)

| 旋轉樓梯內景(加拿大木業供圖,攝影 ?金偉琦)
| 木結構圓形天窗(加拿大木業供圖,攝影 ?金偉琦)
| 建筑內部(加拿大木業供圖,攝影 ?金偉琦)
其余兩個單元A1-1和A1-3都設計了從底到頂的混凝土結構塔樓。在結構上,塔樓和膠合木斜撐共同為整體結構提供了側向穩定。這是多高層木結構常見的設計手法。
木結構主體框架使用了產自加拿大的花旗松,在國內工廠加工成膠合木構件,并采用自動化生產設備進行切割、打孔和開槽。膠合木構件之間采用鋼連接件和螺栓連接。
03
施工過程

| 膠合木吊裝過程 ?加拿大木業

| 膠合木梁柱施工現場 ?加拿大木業
| 金屬連接件細節 ?加拿大木業
為了加快主體結構的施工進度,樓面采用了由SPF木骨架和定向刨花板構成的輕型樓面,并在工廠預制完成。這樣每層樓面的安裝時間大大縮減至一到兩天。(整棟建筑共使用了約720立方米的花旗松膠合木和約260立方米的SPF規格材。)
| 預制樓板構件工廠加工 ?加拿大木業

| 預制樓板構件安裝過程 ?加拿大木業
04
技術圖紙

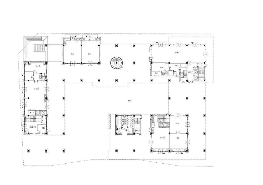
| 首層平面圖 ?上海興筑建筑設計
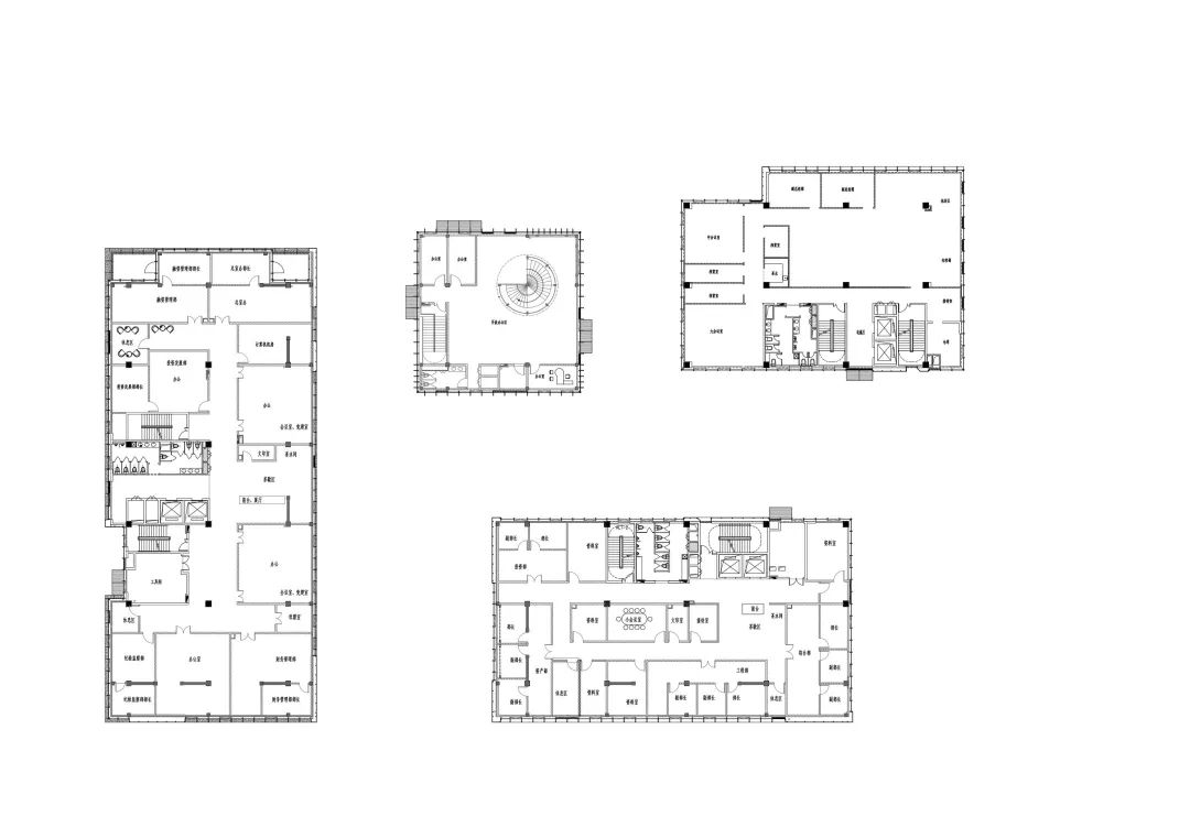
| 二層平面圖 ?上海興筑建筑設計

| 三層平面圖 ?上海興筑建筑設計

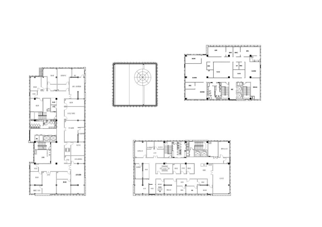
| 四層平面圖 ?上海興筑建筑設計

| 五層平面圖 ?上海興筑建筑設計
| 立面圖 ?上海興筑建筑設計

| 剖面圖 ?上海興筑建筑設計
項目名稱:雪浪小鎮數據創新中心 建設地點:江蘇無錫 木結構建筑面積:5780㎡ 竣工時間:2021年12月 開發單位:無錫新澤文商旅投資發展有限公司 設計單位:上海興筑建筑設計有限公司/上海交通大學建筑設計研究院 施工單位:江蘇蘇陽建設有限公司 技術支持:加拿大木業 攝影:金偉琦 攝影后期:UED新媒體
設計說明部分撰文 | 上海興筑建筑設計有限公司
編輯 | 李林松
來源:加拿大木業(微信號:canadawood)







