工業廠房 “ 變身 ” 一個多學科的文化空間
發布時間:2023-05-25

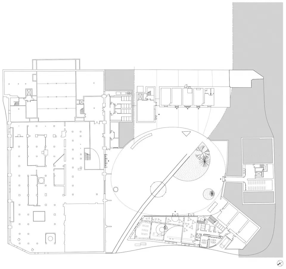
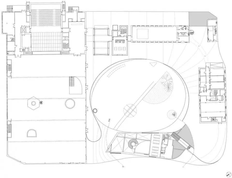
該項目位于法國,由SO-IL建筑工作室設計,項目是一個三個獨立但又相互關聯的機構:玻璃博物館 (Musée du Verre et du cristal)——追溯當地玻璃歷史的鮮活記憶;CIAV(Centre International d'Art Verrier)——傳統工藝與現代實踐相結合的國際玻璃藝術中心;和 Cadhame (Halle verrière)——一個多學科的文化空間,在不同樓層設有藝術裝置、活動中心和音樂會。經過精細改造,目前成了與工業遺產對話的現代形象。

起伏的現澆混凝土表面暗示著玻璃生產的過程,因為它將建筑物結合在一起。表面的形成自然與屋頂、天花板和墻壁連接在一起,連接建筑物的底層形成了該建筑的公共廣場。新的功能被引入了這個表面之下和之上,包括辦公室、車間區域、咖啡館和餐廳。



現有建筑功能進行了重新設計和擴展:工廠大廳在以前未使用的地下室地板上有一個新入口和一個可容納 500 個座位的黑匣子劇院,該劇院可以重新作為一個可容納 700 人站立的劇院或一個可容納 3,000 人的音樂廳。




新的公共空間提高了市民對歷史遺址的認識,還為戶外劇院、音樂會和季節性慶祝活動提供了一個高度靈活的場地。






項目地點:法國邁森塔爾
設計單位:SO-IL
結構設計:三菱重工
建筑面積:5000平米
攝 影:Jean-Claude Kanny
來源:Future Architects(ID:Futurearchitects001







